HOME (Nieuwe
zoek
opdracht)
◄ ZOEKPAGINA
Alle BLAUWE tekst is aanklikbaar
klik hier voor PERMALINK in browserbalk
©
naar resultaten
van zoekopdracht
Basel
▼ KLIK voor alles over het trefwoord: trefwoord:
Utrecht - Oudegracht 258
Kaart 6
losse afbeeldingen
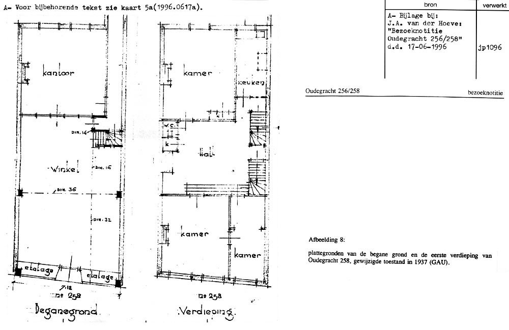
Utrecht - Oudegracht 258
1937.0001d