HOME (Nieuwe
zoek
opdracht)
◄ ZOEKPAGINA
Alle BLAUWE tekst is aanklikbaar
klik hier voor PERMALINK in browserbalk
©
naar resultaten
van zoekopdracht
(Den) Treek
▼ KLIK voor alles over het trefwoord: trefwoord:
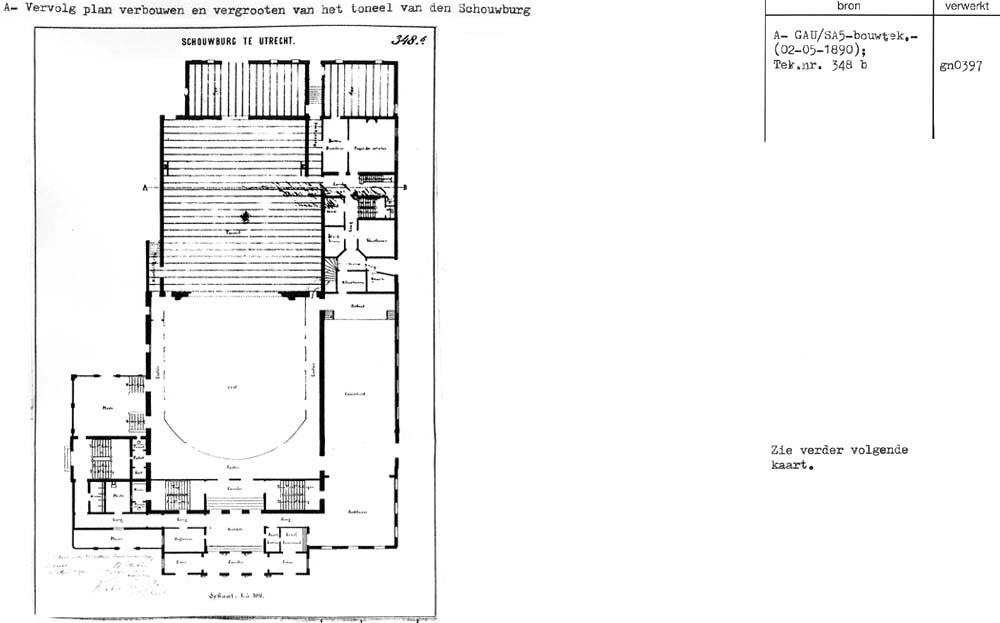
Utrecht - Vredenburg 70 - gesloopt 1941
Kaart 6
losse afbeeldingen
Utrecht - Vredenburg 70 - gesloopt 1941
1890.0502b