Kaart 6
losse afbeeldingen
 
Utrecht - Oudegracht 229 (oud adres) 1989.0001b
bron
Soort afbeelding:
Tekening
Datering:
1989
Vervaardiger en/of uitgave:
Kees Terhorst
Omschrijving:
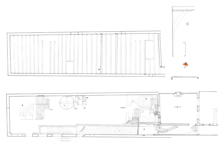
Utrecht - Oudegracht 229 (oud adres) = Pandhuis.
Afb. 189 Oude Gracht 229. Plattegrond met opgegraven verschijnselen. Daarboven opmeting van de balklaag. A: het 14e-eeuwse huis. B: het toegevoegde 16e-eeuwse huis dat in 1764 herbouwd werd. C: de 17e-eeuwse uitbreiding. D: fundering van de 14e-eeuwse westmuur. E: fundering van de 16e-eeuwse westmuur met de drempel van een doorgang. F: middeleeuwse beerput. G: middeleeuwse doorgang. H: 16e-eeuws keldertje. I: stortkoker van een beerput. J: 17e-eeuws secreet onder de vroegere spiltrap. K: oven. L: laat 17e-eeuwse gang. M: vloer van de werkplaats van een schildersbedrijf.
Opmerkingen:
Archeologische en Bouwhistorische Kroniek gemeente Utrecht 1989,
blz. 115.
Klik hier voor bijbehorende tekst

verwerkt







jp0210