Kaart 6
losse afbeeldingen
 
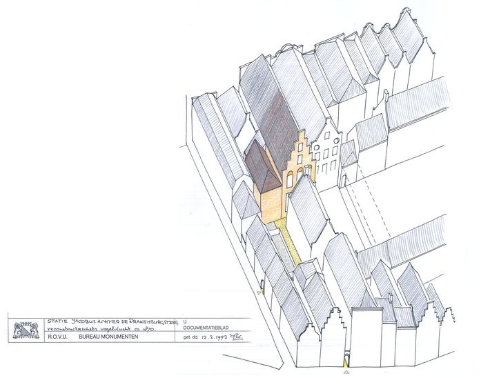
Utrecht - Oudegracht W.Z. 65 - schuilkerk Sint-Jacobus 1870.0001b
bron
Soort afbeelding:
Tekening
Datering:
vogelvluchttekening: situatie ca 1870
Vervaardiger en/of uitgave:
Frans Kipp
Omschrijving:
Blok A32, zuidelijke deel langs Drakenburgsteeg/straat, van Oudegracht tot Neude. Ingekleurd het deel dat als schuilkerk Sint Jacobus fungeerde
Opmerkingen:

verwerkt







jp0209