HOME (Nieuwe
zoek
opdracht)
◄ ZOEKPAGINA
Alle BLAUWE tekst is aanklikbaar
klik hier voor PERMALINK in browserbalk
©
naar resultaten
van zoekopdracht
▼ KLIK voor alles over het trefwoord: trefwoord:
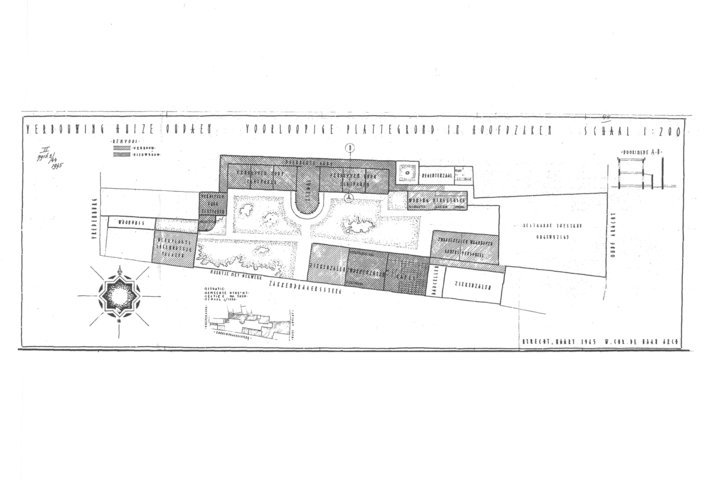
Utrecht - Zakkendragerssteeg 13 (gesloopt 1979)
Utrecht - Zakkendragerssteeg 13 (gesloopt 1979)
1945.0300a
bron
Bouwtekening,
bewaard in
Het Utrechts Archief.
Vindplaats:
GAU/SA6-bouwtek.-
tek.nr: 7916.2/44
Datum:
03-1945
Opmerkingen:
Utrecht - Zakkendragerssteeg 13 (gesloopt 1979) (op 7 kaarten)
verwerkt