HOME (Nieuwe
zoek
opdracht)
◄ ZOEKPAGINA
Alle BLAUWE tekst is aanklikbaar
klik hier voor PERMALINK in browserbalk
©
naar resultaten
van zoekopdracht
Roderwolde
▼ KLIK voor alles over het trefwoord: trefwoord:
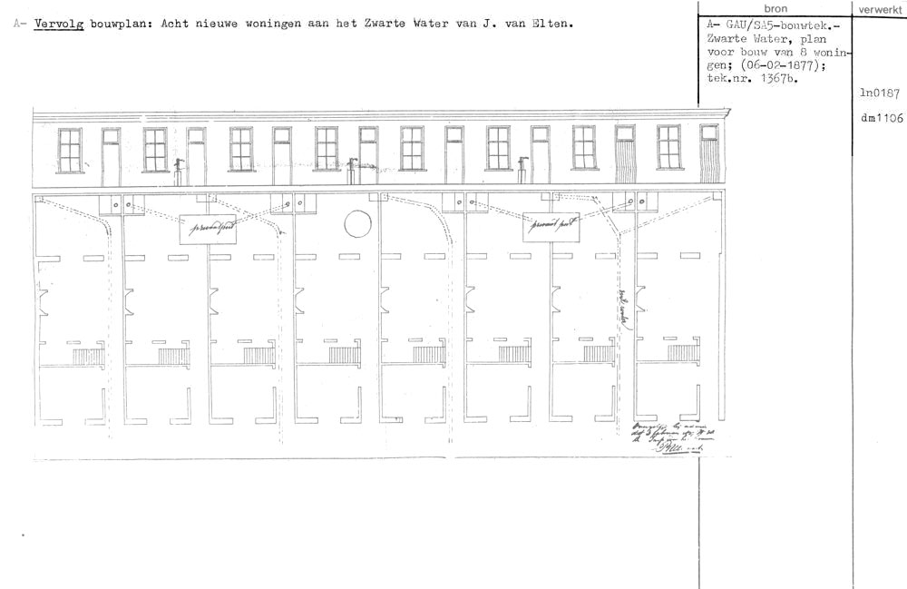
Utrecht - Zwartewater - bouwplan 1877a
Kaart 6
losse afbeeldingen
Utrecht - Zwartewater - bouwplan 1877a
1877.0206b