HOME (Nieuwe
zoek
opdracht)
◄ ZOEKPAGINA
Alle BLAUWE tekst is aanklikbaar
klik hier voor PERMALINK in browserbalk
©
naar resultaten
van zoekopdracht
Utrecht - blok A
▼ KLIK voor alles over het trefwoord: trefwoord:
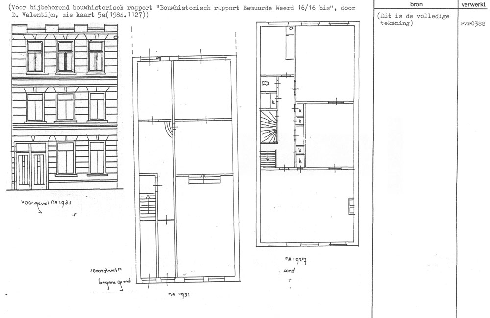
Utrecht - Bemuurde Weerd W.Z. 16
Kaart 6
losse afbeeldingen
Utrecht - Bemuurde Weerd W.Z. 16
1984.1127