◄ ZOEKPAGINA
alle BLAUWE tekst is aanklikbaar
klik hier voor PERMALINK in browserbalk
©
terug naar resultaten
van zoekopdracht
Utrecht - Achter Clarenburg 12 - huis Schaffenburg
▼ KLIK voor alles over het trefwoord:
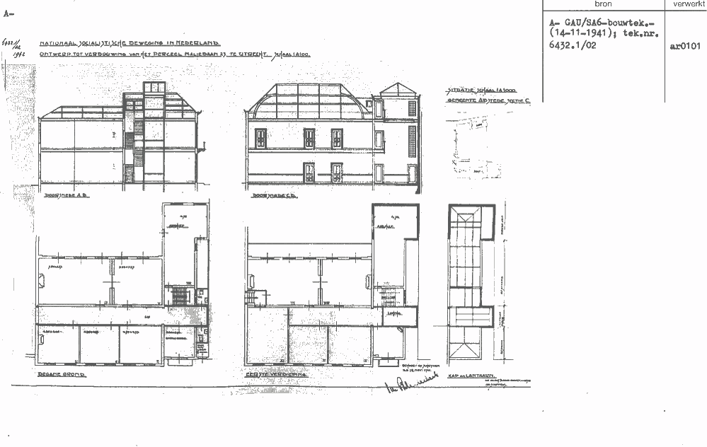
Utrecht - Maliebaan 23 (vervallen adres)
pagina
6
van
6
Utrecht - Maliebaan 23 (vervallen adres)
1941.1114
'15:19 19-2-2008