◄ ZOEKPAGINA
alle BLAUWE tekst is aanklikbaar
klik hier voor PERMALINK in browserbalk
©
▼ KLIK voor alles over het trefwoord:
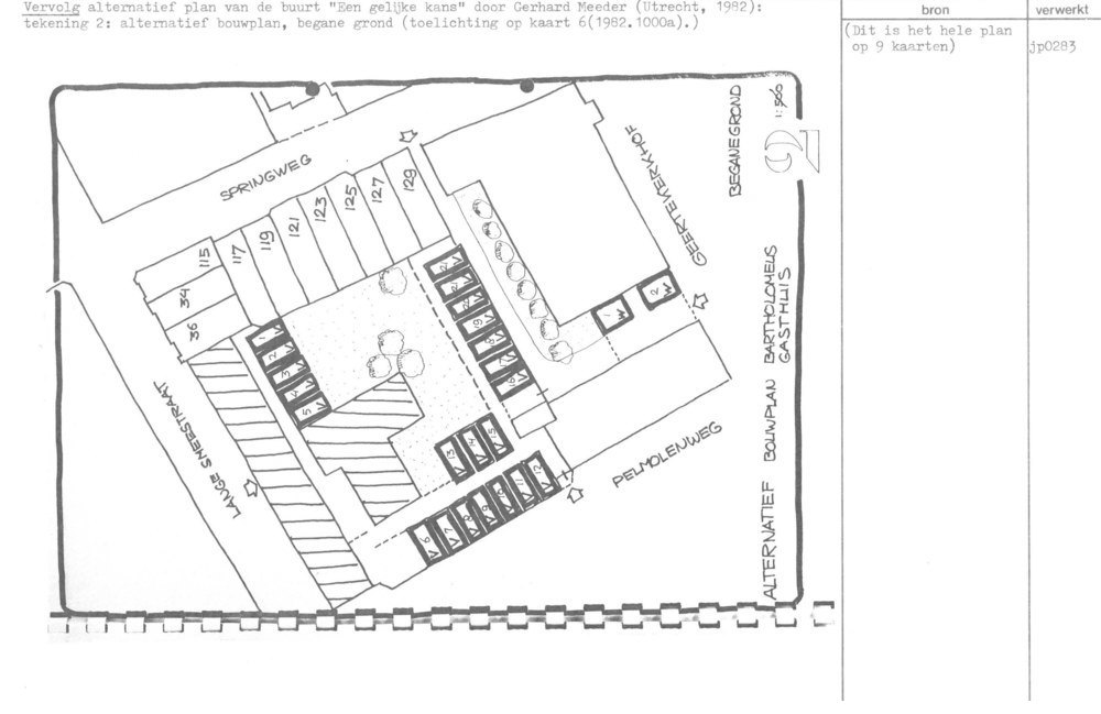
Utrecht - Lange Smeestraat 40 - Bartholomeus-gasthuis - bouwplan 1976
pagina
16
van
22
Utrecht - Lange Smeestraat 40 - Bartholomeus-gasthuis - bouwplan 1976
1982.1000d
'15:19 19-2-2008