◄ ZOEKPAGINA
alle BLAUWE tekst is aanklikbaar
klik hier voor PERMALINK in browserbalk
©
terug naar resultaten
van zoekopdracht
Noorbeek - Sint-Brigidakerk
▼ KLIK voor alles over het trefwoord:
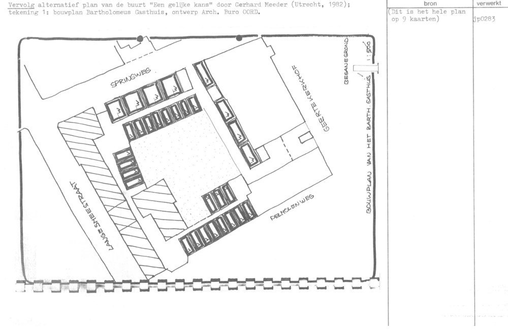
Utrecht - Lange Smeestraat 40 - Bartholomeus-gasthuis - bouwplan 1976
pagina
15
van
22
Utrecht - Lange Smeestraat 40 - Bartholomeus-gasthuis - bouwplan 1976
1982.1000c
'15:19 19-2-2008