◄ ZOEKPAGINA
alle BLAUWE tekst is aanklikbaar
klik hier voor PERMALINK in browserbalk
©
terug naar resultaten
van zoekopdracht
Inwoneraantal - Doesburg
▼ KLIK voor alles over het trefwoord:
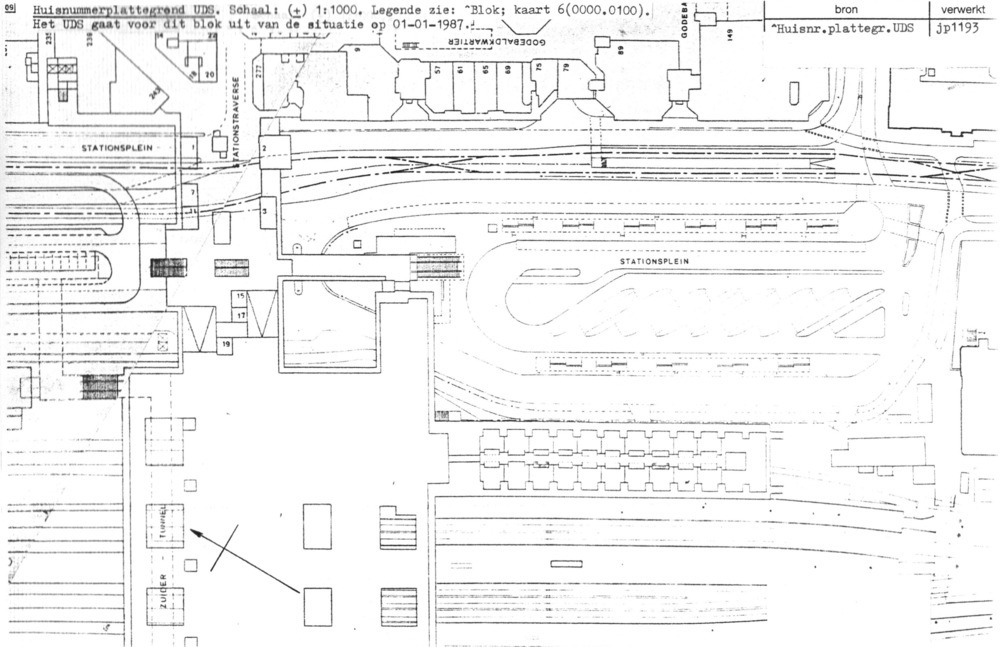
Utrecht - Blok F005
pagina
1
van
2
Utrecht - Blok F005
0000.0100
'15:19 19-2-2008