◄ ZOEKPAGINA
alle BLAUWE tekst is aanklikbaar
klik hier voor PERMALINK in browserbalk
©
terug naar resultaten
van zoekopdracht
Borssele - Berg van Troje
▼ KLIK voor alles over het trefwoord:
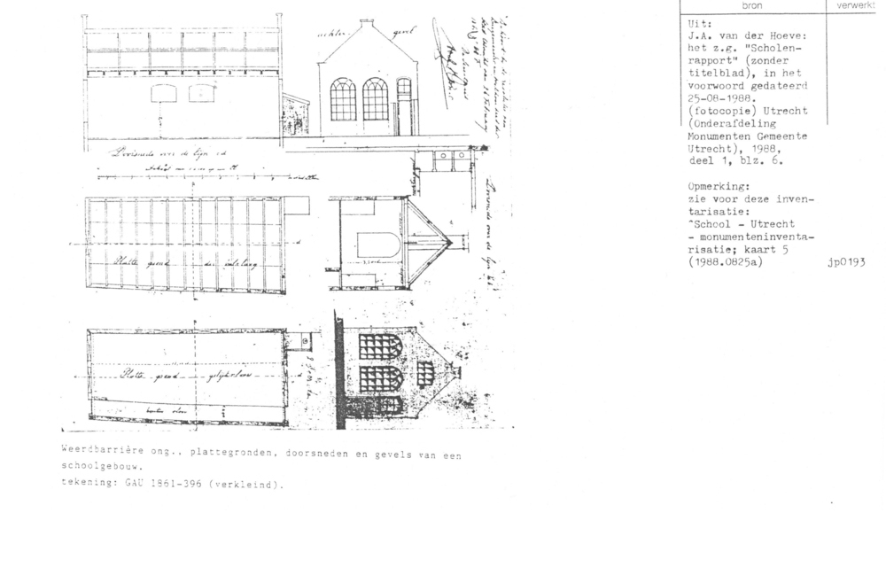
Utrecht - Bemuurde Weerd O.Z. 23 - oud adres
pagina
3
van
3
Utrecht - Bemuurde Weerd O.Z. 23 - oud adres
1861.0226b
'15:19 19-2-2008