◄ ZOEKPAGINA
alle BLAUWE tekst is aanklikbaar
klik hier voor PERMALINK in browserbalk
©
▼ KLIK voor alles over het trefwoord:
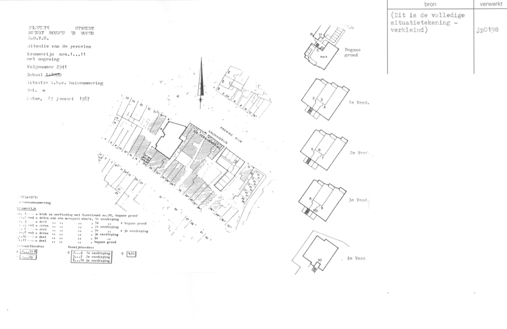
Utrecht - Krommerijn 1 e.v. - bouwplan 1986
pagina
2
van
2
Utrecht - Krommerijn 1 e.v. - bouwplan 1986
1987.0123
'15:19 19-2-2008