◄ ZOEKPAGINA
Alle BLAUWE tekst is aanklikbaar
©
terug naar resultaten
van zoekopdracht
Utrecht - Asterstraat
▼
KLIK hieronder
voor alles over dit trefwoord
afbeelding
13
van
235
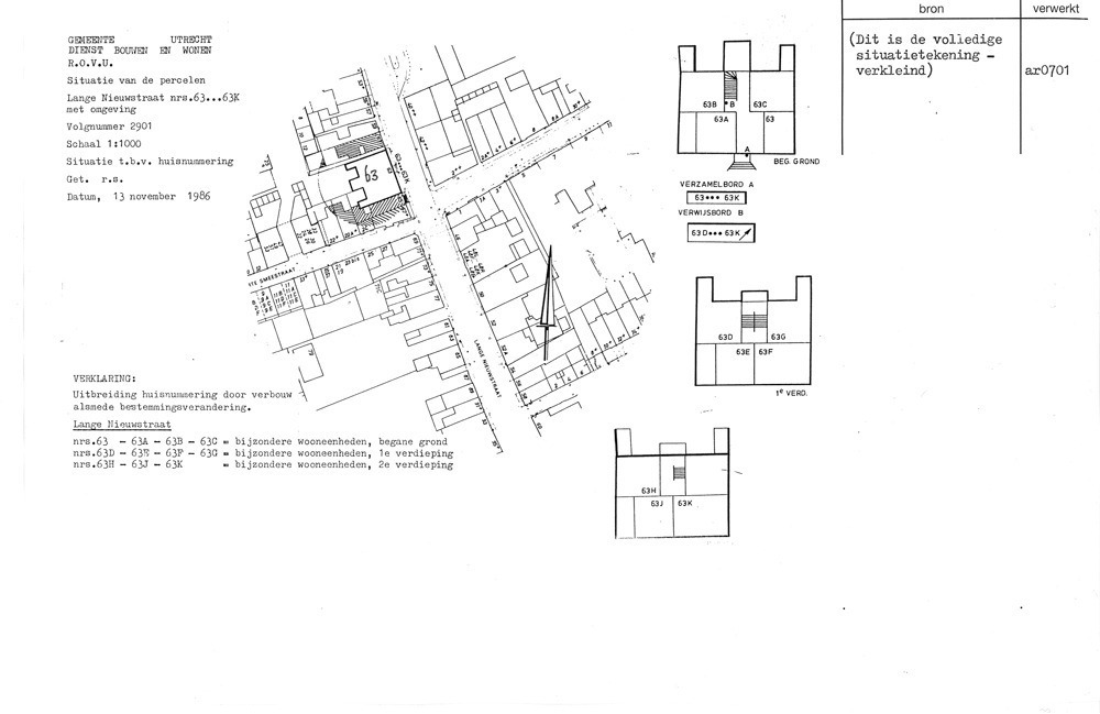
Utrecht - Lange Nieuwstraat - huisnummering
.1986.1113