◄ ZOEKPAGINA
alle BLAUWE tekst is aanklikbaar
klik hier voor PERMALINK in browserbalk
©
▼ KLIK voor alles over het trefwoord:
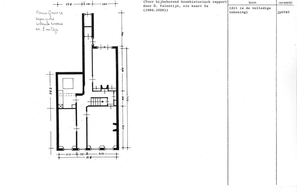
Utrecht - Nieuwegracht 52
pagina
11
van
14
Utrecht - Nieuwegracht 52
1984.1026a
'15:19 19-2-2008